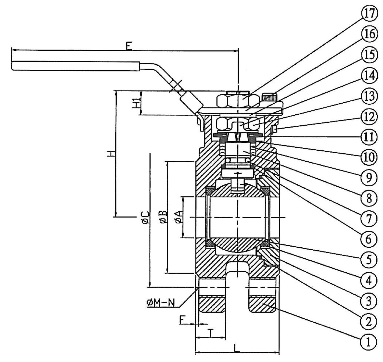
| NR | PART | MATERIALE |
|---|---|---|
| 1 | Hus | Støpestål A216 WCB |
| 2 | Hus tetning | PTFE |
| 3 | Endestykke | Støpestål A216 WCB |
| 4 | Sete | RTFE |
| 5 | Kule | AISI 316 |
| 6 | Skive | PTFE |
| 7 | O-ring | VITON |
| 8 | Spindel | AISI 316 |
| 9 | Spindeltetning | PTFE |
| 10 til 17 | Pakkboksdetaljer | AISI 304 |
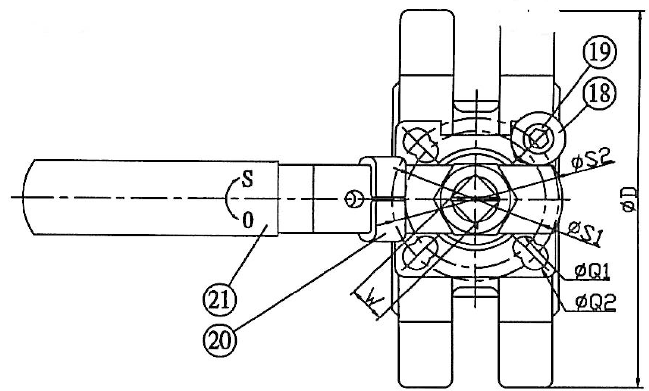
| DN | ART. NR. MANUAL | øA mm | L mm | øD mm | H mm | H1 mm | W mm | E mm | S1 mm | S2 mm | TRYKK KLASSE |
|---|---|---|---|---|---|---|---|---|---|---|---|
| 15 | 080203 | 15 | 40,8 | 95,0 | 67,0 | 12,0 | 9,0 | 135,0 | 42,0 | PN 16 | |
| 20 | 080204 | 20 | 44,0 | 105,0 | 69,5 | 12,0 | 9,0 | 135,0 | 42,0 | PN 16 | |
| 25 | 080235 | 25 | 50,0 | 115,0 | 76,1 | 13,5 | 11,0 | 142,0 | 42,0 | 50,0 | PN 16 |
| 32 | 080206 | 32 | 60,0 | 140,0 | 88,5 | 13,5 | 11,0 | 142,0 | 42,0 | 50,0 | PN 16 |
| 40 | 080207 | 40 | 65,0 | 150,0 | 102,0 | 16,0 | 14,0 | 200,0 | 50,0 | 70,0 | PN 16 |
| 50 | 080208 | 50 | 81,0 | 165,0 | 110,6 | 16,0 | 14,0 | 200,0 | 50,0 | 70,0 | PN 16 |
| 65 | 080209 | 65 | 110,0 | 185,0 | 131,8 | 19,0 | 17,0 | 210,0 | 70,0 | 102,0 | PN 16 |
| 80 | 080209 | 80 | 120,0 | 200,0 | 153,3 | 24,0 | 22,0 | 283,0 | 102,0 | 125,0 | PN 16 |
| 100 | 080211 | 100 | 150,0 | 220,0 | 168,3 | 24,0 | 22,0 | 283,0 | 102,0 | 125,0 | PN 16 |
EN 10204 – 3.1 Sertifikat tilgjengelig * Free top