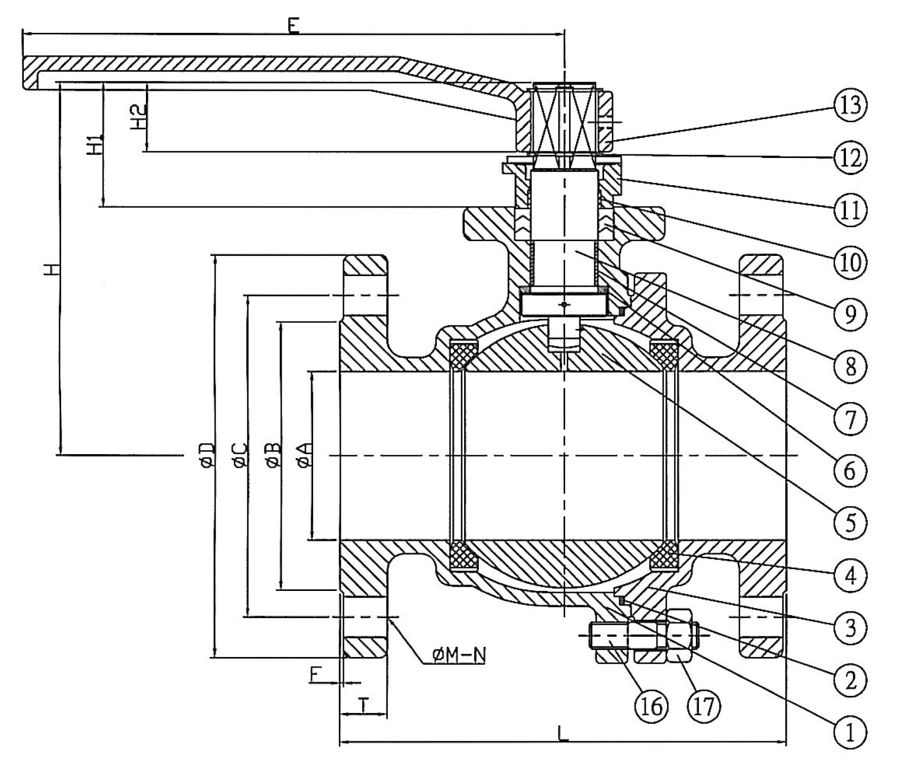
| NR/NO | PART | MATERIALE |
|---|---|---|
| 1 | Hus | Stainless Steel SS 1.4408 |
| 2 | Hus tetning | PTFE |
| 3 | Endestykke | Stainless Steel SS 1.4408 |
| 4 | Sete | RTFE |
| 5 | Kule | AISI 316 |
| 6 | Skive | PTFE |
| 7 | Foring | PTFE |
| 8 | Spindel | AISI 316 |
| 9 | Spindeltetning | PTFE |
| 10 | Pakboks foring | PTFE |
| 11 | Pakboks | AISI 304 |
| 12 | Låsering | AISI 304 |
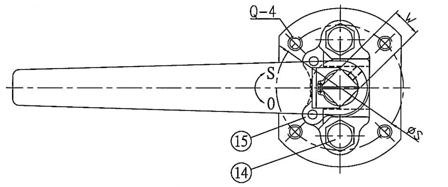
| 13 | Spak | Stål |
| 14 | Bolt | AISI 304 |
| 15 | Stop plate | AISI 304 |
| 16 | Bolt | SS A193 Gr. B8 |
| 17 | Mutter | SS A194 Gr. 8 |
| DN | ART. NR. MANUAL | ØA mm | L mm | ØD mm | H mm | H1 mm | W mm | E mm | ØS mm | TRYKK KLASSE |
|---|---|---|---|---|---|---|---|---|---|---|
| 15 | 080133 | 15 | 115,0 | 95,0 | 65,7 | 22,7 | 11,0 | 131,0 | 42,0 | PN 16 |
| 20 | 080134 | 20 | 120,0 | 105,0 | 68,2 | 22,5 | 11,0 | 131,0 | 42,0 | PN 16 |
| 25 | 080135 | 25 | 125,0 | 115,0 | 80,6 | 29,3 | 14,0 | 165,0 | 50,0 | PN 16 |
| 32 | 080136 | 32 | 130,0 | 140,0 | 86,5 | 29,3 | 14,0 | 165,0 | 50,0 | PN 16 |
| 40 | 080137 | 40 | 140,0 | 150,0 | 108,9 | 38,4 | 17,0 | 200,0 | 70,0 | PN 16 |
| 50 | 080138 | 50 | 150,0 | 165,0 | 116,5 | 38,4 | 17,0 | 200,0 | 70,0 | PN 16 |
| 65 | 080139 | 65 | 170,0 | 185,0 | 139,0 | 38,4 | 17,0 | 200,0 | 70,0 | PN 16 |
| 80 | 080140 | 80 | 180,0 | 200,0 | 169,4 | 58,3 | 22,0 | 330,0 | 102,0 | PN 16 |
| 100 | 080141 | 100 | 190,0 | 220,0 | 193,3 | 60,3 | 22,0 | 330,0 | 102,0 | PN 16 |
| 125 | 080142 | 125 | 325,0 | 250,0 | 237,0 | 75,0 | 27,0 | 753,0 | 125,0 | PN 16 |
| 150 | 080143 | 150 | 350,0 | 285,0 | 256,0 | 75,00 | 27,00 | 753,00 | 125,0 | PN 16 |